Location Dallas, TX
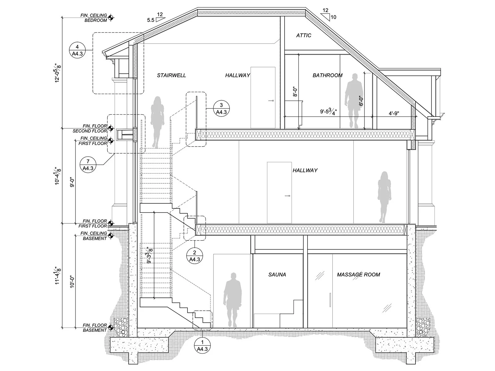
Project Type Residential - Detached Tri-Level Guest House
Size 3,823 sq.ft.
Year 2025
Scope of Work Design, Construction Drawings, Entitlements, Visualization
Architect Alan Bernstein Architect + Landscape Architect
Location Dallas, TX
Project Type Residential - Detached Tri-Level Guest House
Size 3,823 sq.ft.
Year 2025
Scope of Work Design, Construction Drawings, Entitlements, Visualization
Architect Alan Bernstein Architect + Landscape Architect