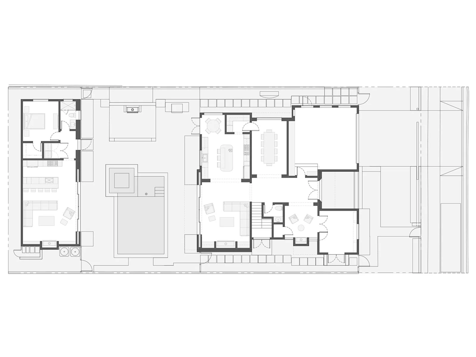
Location Sherman Oaks, CA
Project Type Residential New Build + ADU
Size 3,569 sq.ft. + 800 sq.ft. ADU
Year 2023
Scope of Work Design, Construction Drawings, Visualizations
Architect Alan Bernstein Architect + Landscape Architect
Location Sherman Oaks, CA
Project Type Residential New Build + ADU
Size 3,569 sq.ft. + 800 sq.ft. ADU
Year 2023
Scope of Work Design, Construction Drawings, Visualizations
Architect Alan Bernstein Architect + Landscape Architect