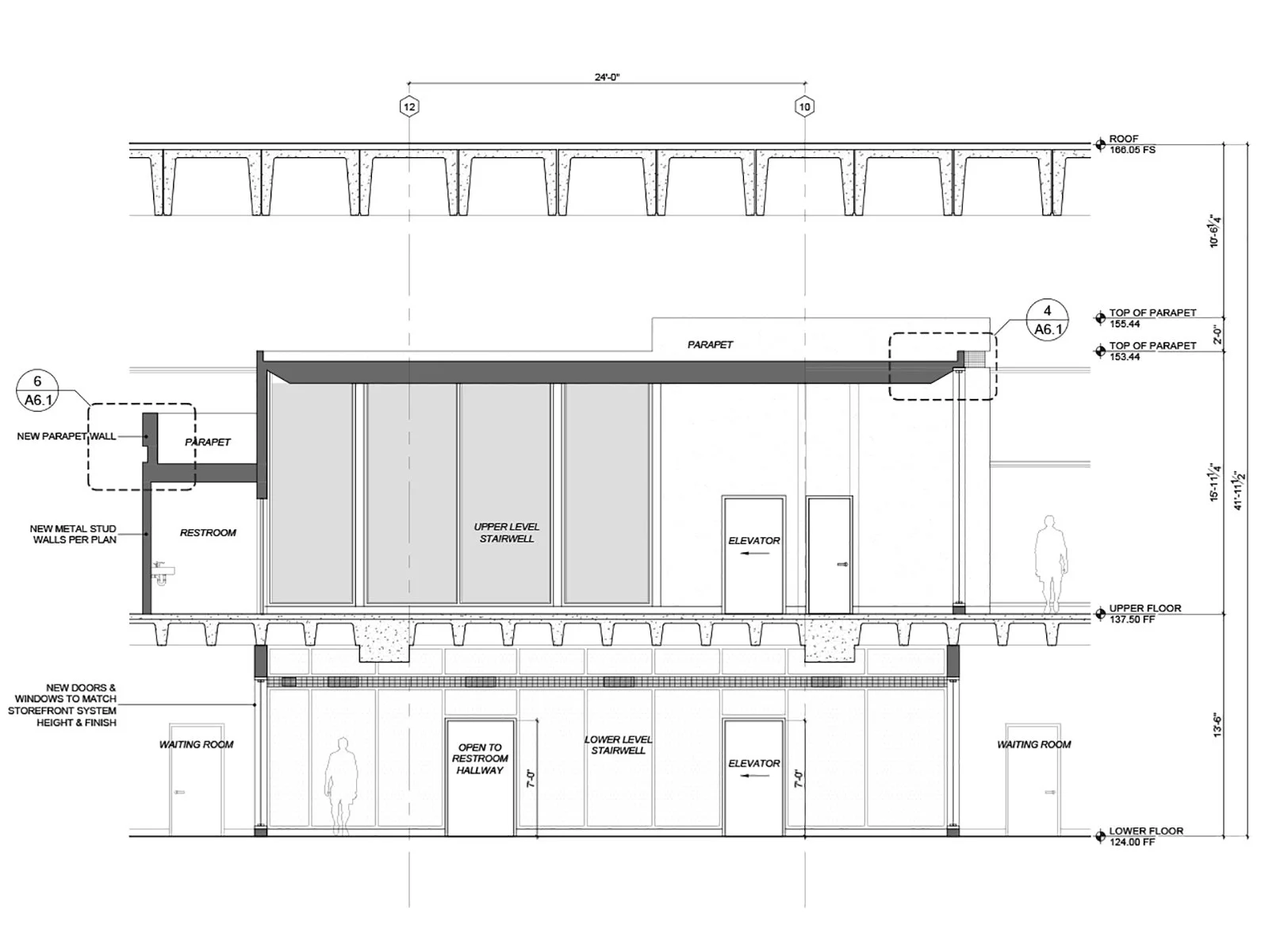
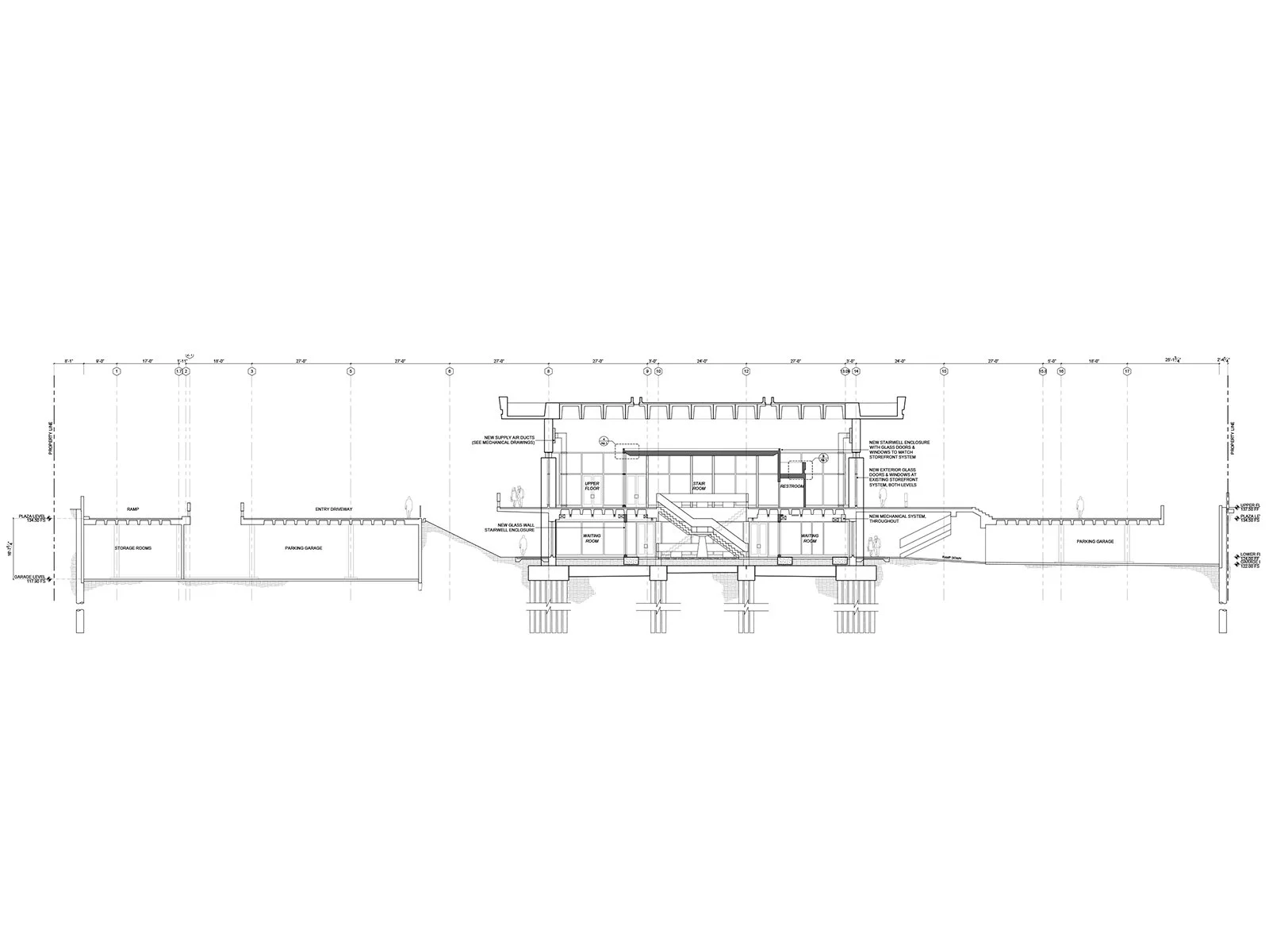
Location Oxnard, CA
Project Type Commercial Tenant Improvement
Size 15,732 sq.ft.
Year 2018
Scope of Work Design, Construction Drawings, Entitlements, Visualization
Architect Alan Bernstein Architect + Landscape Architect
Location Oxnard, CA
Project Type Commercial Tenant Improvement
Size 15,732 sq.ft.
Year 2018
Scope of Work Design, Construction Drawings, Entitlements, Visualization
Architect Alan Bernstein Architect + Landscape Architect